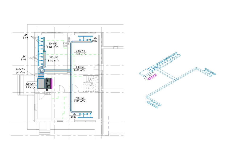
Вентиляція
Проектування припливних та витяжних вентиляційних систем. Рекуперація тепла, осушення, зволоження, димовидалення.


Розробка проекту з дотримання сучасних будівельних норм
Індивідуальне технічне рішення
3D-моделювання з використанням новітніх технологій
Які системи ми проектуємо?
Сучасні інженерні системи, зокрема вентиляція, кондиціонування та опалення (ОВіК) , відіграють ключову роль у забезпеченні оптимальних умов життєдіяльності будь-якого побутового і комерційного приміщення. Вони є необхідним елементом промислової сфери, та визначають якість, ефективність і безпеку виробничих процесів.
Проектування інженерних систем є першочерговим етапом для розвитку та успішної діяльності промислових підприємств у сучасному світі

Проектування припливних та витяжних вентиляційних систем. Рекуперація тепла, осушення, зволоження, димовидалення.
До послуги проектування входить:


Кондиціонування
До послуги проектування входить:


Проект системи опалення офісу, виробничого цеху, приватного будинку. Сучасні котельні на базі теплового насосу або котла.
До послуги проектування входить:

чому обирають нас?

Ми, Товариство з обмеженою відповідністю АРГО-ІНЖИНІРИНГ
- з 2016 року провідний постачальник послуг у сфері проектування систем вентиляції, кондиціонування і опалення на території України.
Гарантії надійного партнера і репутацію професійної компанії підтверджують:
наявність дозвільних документів і сертифікатів
відповідність вимогам і нормам безпеки, як на етапі проектування, так і при виконанні робіт
гарантії та подальше сервісне обслуговування
Інженерний відділ нашої компанії складають сертифіковані проектувальники, головний інженер проекту (ГІП), досвідчені виконроби та фахівці з монтажних робіт.
Комплексний підхід дозволяє нам задовольнити всі сучасні інженерні потреби та отримати знижки та індивідуальні умови на обладнання, проектування або роботи.
01 /
8 років досвіду проектування
Наші інженери мають великий досвід роботи, всі ліцензії та сертифікати, необхідні для якісного проектування і виконання монтажних робіт.
02 /
Енергоефективні рішення
Керуючись інноваційними технологіями ми проектуємо інженерні системи з акцентом на максимальну енергоефективність Класу А/А++.
03 /
Професійний монтаж підключ
Проектування і реалізація кожного проекту з дотриманням зазначених термінів та високих стандартів якості.


LOD 100 - Ескізний проект. Може стати в нагоді на ранніх стадіях роботи;
LOD 200 - Стадія П без прив'язки до конкретного виробника та без точних розмірів для основних елементів;
LOD 300 - Стадія П без прив'язки до конкретного виробника, але з точними положеннями елементів;
LOD 400 - Стадія Р (РП), конкретні виробники елементів, вузли деталі, точні положення та габарити. Найширша на етапі проектування;
LOD 500 - Доопрацьована модель до виконавчої документації (деталювальні креслення, тощо). Виконується під час реалізації проекту.
професійно встановлюємо
а інжинірингова компанія - виконає проект і монтаж "підключ".
Ми не лише проектуємо, а й професійно встановлюємо системи та обладнання.
Виконання робіт згідно розробленої документації - це гарантія стабільної і продуктивної роботи системи.
Останні проекти, що виконувала компанія:

чи потрібен проект?
Для будь-якого будівельного проекту, особливо для комерційних та виробничих приміщень, внутрішні кліматичні системи - температура, вологість та повітрообмін - можуть впливати на стан та самопочуття людей .
Якісне проектування є дуже важливим. Отож, розглянемо як працюють два типи встановлених систем.
Система без проекту
Сертифікований проект

Ризики
Низько-якісний і тривалий монтаж
Не зрозуміло як і що встановлювати
Затримка термінів виконання робіт

Надійність
Індивідуальне технічне рішення
Монтаж згідно проектної документації
Доступність креслень на 1-20 років

Ускладнення
Несправності в системі важно знайти
Складність управління устаткуванням
Неможливість модернізації системи

Ефективність
Підвищена енергоефективність та ККД
Розрахунок теплових навантажень
Оптимізація енерговитрат на етапі проектування

Відмова роботи
Недостатня потужність елементів
Не гарантійні поломки і аварії
Дорого-вартісна заміна або ремонт обладнання

Стабільність
Професійний підбір обладнання
Розрахунок тиску, температур, швидкості повітря, гідравлічних навантажень
Гарантія стабільної роботи системи
Енерго-ефективність та сталість
...починається з сучасних рішень, зниження витрат та максимальної екологічності

Ефективність ресурсів - є основною принциповою ідеєю в умовах існування нашого часу.
Проектування дозволяє точно визначити потреби системи та оптимізувати її для оптимального використання енергії та ресурсів. Це допомагає уникнути зайвого споживання енергії та забезпечує ефективну роботу системи
Проект сучасної системи вентиляції, опалення або кондиціонування дозволяє реалізувати будь-які потреби.
Ви отримаєте
Готовий до реалізації робочий проект вентиляції, опалення або кондиціонування в 2-х форматах (друкованому та електронному)
Приклади проектів @argoengineering
проект на сучасному обладнанні
В своїх проектах ми залучаємо найкращі інженерні технології та новинки зі світового ринку кліматичного обладнання. Таким чином наші системи працюють довго, стабільно і з високим ККД, зберігаючи енергоресурси.

Проектування припливних та витяжних систем вентиляції з рекуперацією тепла. Системи димовидалення, осушення, зволоження, аспірація.

Побутові та промислові системи кондиціонування. VRF та VRV мультизональне кондиціювання. Чилер-фанкойл. Спліт та мульти-спліт системи.


Проект системи опалення офісу, ресторану, підприємства, приватного будинку та ін. На базі теплового насосу поаітря-вода, газових або електро-котлів, ґрунтових систем.
Потрібна консультація?
Зв'яжіться з нами і ми роскажемо Вам про створення сучасного інженерного проекту